Senza nome 1
06/05/2016
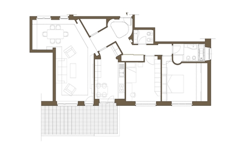
INTERIOR DESIGN IN OSTIA LIDO Forme essenziali ed accenti di colore per il recupero di un appartamento con vista mare Intervenire in un ambiente preformato, caratterizzato da una rigida distribuzione degli spazi quale è, ad esempio, l'assetto distributivo peculiare dell'edilizia residenziale anni '70, non è sempre un compito facile. Strutture, impianti, accessi ed affacci sono preordinati e rappresentano vincoli con i quali sembrerebbe difficile confrontarsi. Nulla di più diverso: "..l'architetto si esalta nel vincolo.." si diceva in facoltà diversi anni orsono e, di fatto, quanto più sono numerosi i condizionamenti, le necessità tecniche, i fabbisogni e le richieste da soddisfare, tanto più diventa esaltante il momento nel quale tutti questi vincoli vengono superati da una corretta progettazione architettonica. E' questa la filosofia progettuale che ha sempre caratterizzato gli interventi dell'architetto Giancarlo Busato, owner dello studio gcb projects, che ha modificato il tradizionale schema planimetrico di un appartamento sul litorale romano recuperandone gli spazi tramite l'uso di forme geometriche essenziali ed accenti di colore. L'appartamento, di circa 130 mq di superficie, era concepito con una serie di "filtri" che parcellizzavano il sistema: ingresso, corridoi distributivi, anticucina, opprimevano gli spazi vanificandone le potenzialità. L'esistenza di un unico bagno, poi, costituiva una grave lacuna per la giovane coppia con bimba, proprietaria dell'immobile, che necessitava di almeno un locale igienico per gli ospiti oltre ad una zona living confortevole ed ad una ampia e funzionale cucina. L'intervento di interior design ha permesso di enfatizzare le potenzialità inespresse dell'immobile tramite una operazione combinata di demolizione e rotazione delle visuali. L'ingresso originario è stato sostituito da un vestibolo caratterizzato da forme avvolgenti che immediatamente sposta la visuale verso la luminosa zona living. Un volume cubico, elementare per la sua semplicità e trattamento materico, si pone come una cuspide per orientare i differenti percorsi di utilizzo dell'appartamento. La rotazione delle visuali è poi enfatizzata dalla tessitura della pavimentazione che corre parallela al senso longitudinale dell'impianto. Il living è solo virtualmente separato dal vestibolo per il tramite di due solidi contrapposti e dal gioco dei controsoffitti che caratterizza il breve disimpegno lungo il quale si aprono l'accesso alla cucina e, in posizione simmetrica, all'office. Immediata è la percezione della luce naturale accentuata dalla scelta materica delle lucide pareti, total white, combinata sia al calore intrinseco del pavimento, in parquet di rovere naturale, che dalla puntualizzazione cromatica dei complementi di arredo. La particolare configurazione degli accessi distributivi ha consentito di non confinare completamente la zona notte aumentando la sensazione di ampliamento degli spazi. Questa è formata da due ampie camere da letto, un bagno padronale con idromassaggio e zona doccia con cromo terapia, un locale igienico per ospiti di particolare impatto cromatico per la peculiare tipologia dei materiali proposti e del loro utilizzo. Grande attenzione è stata infatti dedicata alla realizzazione di questi locali. La scelta dei materiali e delle finiture, concordati preliminarmente con la Committenza, ha consentito, in fase di progettazione esecutiva, di realizzare simulazioni computerizzate utilizzando le medesime texture per il controllo e la gestione preventiva delle operazioni di esecuzione. I sistemi impiantistici rispecchiano le più recenti esigenze di efficentamento energetico. La luce naturale è affiancata da un sistema illuminotecnico basato sull'utilizzo di lampade e stripe led arricchita, per alcuni ambienti del living e dei servizi, dalla tecnologia RGB.
Title #CC
Title #CC
Title #CC
Title #CC
Title #CC
Title #CC
Title #CC
Title #CC
Title #CC
Title #CC
Title #CC
Title #CC
Title #CC
Title #CC